1991 Marine Trader 46 Double CabinSold
$65,000
Boat in Harvey, LA 70124 US
46 Double Cabin
2 Engines (2x Caterpillar)
46.2 feet
Diesel
Fiberglass/Reinforced
Price Improvement: The Seller has reduced the selling price to $65,000!
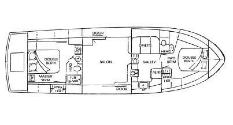
The Marine Trader 46 Double Cabin is a traditional Taiwan-built trawler with a spacious interior and comfortable ride. Like all Marine Trader models, the 46 was built on a solid fiberglass, semi-displacement hull with hard aft chines and a deep, prop-protecting keel. Below deck, the galley-down floorplan of the 46 is arranged with centerline double berths in both staterooms and a full dinette opposite the galley. A lower helm was standard, and port and starboard deck doors in the salon provide easy access to the decks. In the aft cabin, a companionway door opens directly into the cockpit-a very convenient feature indeed. While the exterior decks and handrails are teak, the window frames are aluminum to reduce leaks. The Marine Trader 46 DC is only a 20-minute drive to the New Orleans International Airport (MSY) to the Marine Trader near West End Park. The Mississippi Sound/Gulf of Mexico is accessible from Lake Pontchartrain. "Dock Bored Too" has twin Cat 3208 435 hp and will fast cruise at 17 knots.
Scroll down to view: Specifications - Photos - Multimedia - Engine Details - Press & Media - General Arrangement - Full Details - Vessel Location.
ACCOMMODATIONS
- Layout: Two Cabins and Two Heads
- Headroom: 6’3”
- Air Conditioning: Fwd unit 10,000 btus, Salon unit 12,000 btus & aft unit 10,000 btus
- Ports: Stainless steel
- Hatches: Yes
- Windows: Yes
- Blinds: Yes
- Doors: Port and Starboard in the salon
- Settee(s): L Shaped sofa on stb side and loveseat on the port side
- Cabin Sole: Teak Parque, finish is in fair condition in certain areas
- Dinette: Down, opposite the galley, also converts into a double berth
- Interior Teak: The small damaged areas to the teak veneer in the two cabins were from the previous owners
- Master Cabin: Aft with centerline berth, en suite head
- Guest Cabin(s): Fwd with centerline berth, en suite head
- Master Head: Electric head, sink, faucet, and separate shower stall
- Guest Head: Electric head, sink, faucet, and separate shower stall
GALLEY
- Galley Down
- Stove/Oven: Kenyon 2 burner
- Refrigeration & Freezer: Norcold full standing unit
- Icemaker: Yes
- Microwave Oven: Yes, in lieu of oven
- Sink: Double sinks
- Water: Hot & Cold
- Water Heater: Yes
- Cabinets: Yes
ELECTRONICS
- Plotter: Garmin 7212 at Flybridge
- Plotter: Garmin 741xs at Lower helm
- Autopilot: Robertson AP-11, controls at both helm
- Radar: Garmin
- VHF: ICOM IC M502
- VHF: ICOM IC M42
- Compass: Two
- TV: Yes
- EPIRB: Mini B ACR
ELECTRICAL
- 12v system: Yes
- 110v system: Yes
- Battery Charger: Yes
- Battery Charger: 40amp bow thruster charger installed in 2024
- Batteries: (4) 8D batteries replaced in 2022, (2) bow thruster batteries replaced in 2024
- Shore Power: (2) 30amp service with cords
- Generator: Phasor 10kw with 858, installed in 2017
- Interior Lights: Yes
- Nav Lights: Yes
- Inverter: inoperable
DECK & HULL
- Hull Color: White
- Deck Color: Teak Decks, will need to be refinished, foredeck teak missing bungs
- Draft: 3’8”
- Bow Thruster: Vetus bow thruster, batteries & charger, installed in 2024
- Canvas: Bimini
- Cushions: Foredeck
- Covers: Windshield and Window Screens
- Cockpit Table: (2) tables on the aft cabin top
- Swim Platform: FBG with swim ladder
- Anchor: Fortress with 25' of chain and 250' of rode
- Anchor: Danforth with 200' of rode
- Windlass: Electric Ideal windlass with gypsy & capstan and up/down foot switches
- Locker(s): Yes
- Mast: Was removed pre-2010 and is non longer available
- Towers: (2) stainless towers for scanner and antenna
- Trim Tabs: Yes
- Spot Light: Jabsco
- Rub rail: Yes
- Horns: Yes
- Deck Box: FBG, on aft cabin top
- Fender Holders: 2x2 stainless steel holders on the bow
- Boathouse Kept: 2010 to the Present
- Bottom: The bottom was painted in 2021
MECHANICAL
- Engine: (2) Caterpillar 3208 435 hp
- Transmission: Both transmissions were replaced in 2020
- Shafts: Both shafts were replaced in 2020
- Turbos: Both turbos were rebuilt in 2017
- Injectors: Port 2017
- Floscans: Yes, at both helm stations
- Fire Suppression: Automatic in engine room
- Air Conditioning: (2) 10,000 and 12,000 units, fwd & aft handler
- Props: (2) Four-blade props replaced in 2020
- Spare Props: (2) three-blade props
- Steering: Lower and upper helm stations
- Stuffing box/gland: Traditional stuffing box
- Water Heater: Yes
- Bilge Pump(s): (3) electric pumps and (2) manual pumps
- High Bilge Alarm: Yes
- Filter(s): Racor elements replaced in 2024
- Oil & Filter: Changed Summer 2024
- Transmission Fluid: Changed 2020
- Head: Electric Raritan heads with direct and holding tanks
- Cruise Speed: 10 knots 8-10 gallons per hr
- Fast Cruise Speed: 17 knots
- Max Speed: 20 knots
Lower Helm
- Tachs, volts, water, oil, hour
- Flo Scans
- Garmin 741
- ICOM VHF
- (3) Bilge pump controls
- Bow Thruster
- Autopilot
- Fusion Stereo
- Compass
- Throttles/Gears
- Wheel, Teak & Stainless Steel
UpperHelm
- Tachs, volts, water, oil
- Flo Scans
- Garmin 7212
- ICOM VHF
- Loud Hailer/VHF
- Autopilot
- Depth
- Bow Thruster
- Autopilot
- Fusion Stereo
- Compass
- Ship's Bell
- Throttles/Gears
- 12v outlet
- Wheel
ETY (Marine Trading International)
This company (Marine Trading International) is owned by Donald Miller and is located at PO Box 5300 in Toms River state of NJ. Marine Trading International started making boats on 10/30/1972 and went out of business on (6/10/2019). All manufacturers who historically used ETY: MARINE TRADING INTERNATIONAL; EAGLE TRAWLER YACHTS: MILLER YACHT SALES INC; MED YACHTS INTERNATIONAL and MILLER YACHT SALES
The company offers the details of this vessel in good faith but cannot guarantee or warrant the accuracy of this information nor warrant the condition of the vessel. A buyer should instruct his agents, or his surveyors, to investigate such details as the buyer desires validated. This vessel is offered subject to prior sale, price change or withdrawal without notice.
Price History
| Date | Event | Price |
|---|---|---|
| 7/8/25 | Price decreased | $65,000(-7.1%) |
| 1/11/25 | Initial price | $70,000 |
Videos from Murray Yacht Sales on this 1991 Marine Trader 46 Double Cabin
Finance your dream boat!
Finance your dream boat!
Be the first to know when similar boats hit the market
Get notified when new boats become available
Meet the Broker

Address
Other Information about Murray Yacht Sales
Serving the gulf coast since 1974.
Boat Location
Contact Murray Yacht Sales about 1991 Marine Trader 46 Double Cabin
6500 Spanish Fort Boulevard, New Orleans, LA, 70124
Contact Murray Yacht Sales
6500 Spanish Fort Boulevard, New Orleans, LA, 70124
















































































