2022 Adonia Omega Trip #3 (June 29 - July 05)
$249,000
$270,000
Boat in Page, AZ 86040 US
Omega Trip #3 (June 29 - July 05)
1 Engine (--)
87 feet
Diesel
Aluminum
2022 Adonia Yacht - Omega | Trip #3
Year / Make / Model: 2022 Adonia Yacht New on the water in 2023
Trip #: 3
Trip Dates: June 29 - July 5
Location: Antelope Point Marina
Annual Dues: $14,000
Estimated Turn Fee: $1,850
Off-Season Fee: $200
Ownership Offering: This listing is for Share 3 only. The vessel itself is not for sale.
Location Highlights - Antelope Point Marina
Moored at Antelope Point Marina on Lake Powell, Omega enjoys premier deep-water access and close proximity to some of the lake's most sought-after destinations.
Close to Lake Powell Favorites
Antelope Canyon
Padre Bay
Gunsight Bay
Antelope Point is widely regarded as one of the most desirable and accessible marinas on Lake Powell.
Boat Overview
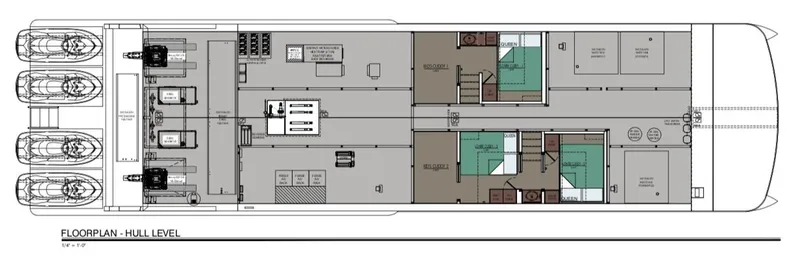
Omega is a 2022 custom-designed Adonia Yacht featuring a rare "Reverse" 87' x 22' floor plan, maximizing entertainment space and panoramic views. Designed for luxury group gatherings, this yacht offers expansive upper-deck living, premium finishes throughout, and exceptional sleeping capacity for large families and corporate-style groups.
- Sleeping Capacity: Sleeps up to 30 adults
- Inside Accommodations: Deluxe "inside-the-boat" accommodations for 20
- Bathrooms: 5 total (3 three-quarter baths, 2 half baths)
- Climate Control: Central A/C & heat (main level & upper pod)
Sleeping AccommodationsPrivate Master Suites (2)
King-size beds
Under-bed storage
Interior ceiling fans
Custom tile showers
Full private bathrooms
Upper-Level Suites (3)
King-size beds
Private Cuddy Cabins (3)
Queen-size beds
Kid's Cuddy Cabins (2)
Sunbrella padding
Flat screen TV/DVD combo
Additional Sleeping
2 Queen day beds on third-level sun deck
Bathrooms
5 total bathrooms
Custom ceramic tile flooring
Custom tile showers in Master & Hall baths
Granite countertops
900-gallon holding tank capacity
UVB Fresh Water Processing System
Entertainment & Technology
Custom entertainment center with 60" TV & surround sound
Satellite TV in main salon, upper deck & both master suites
60" LED TV in weatherproof remote-controlled cabinet (top deck)
iPod docking station & DVD player
Custom sofa with drop-down TV (2nd level)
(2) Ship-to-shore marine radios
Lower & upper helm backup cameras
Complete navigation & anchor light system (dual helm switching)
Deck & Outdoor LivingThird-Level Sun Deck
Custom built-ins
A/C for second-level comfort
2 Queen day beds
Full black mesh screening
(2) 52" ceiling fans
Upper Deck Features
Dual-position helm & controls
(2) pedestal captain's chairs
U-shaped granite bar with:
Sink
Ice maker
Dishwasher
Gas stove
Microwave
Trash compactor
(13) bar stools
Built-in BBQ
66" stainless refrigerator/freezer combo
Master "pod" suite with A/C
Outdoor Amenities
Rear deck slide with water pump
(4) PWC ramps with winches
Full extended swim platform
Custom water stairs
Outdoor patio furnishings
Upper & lower safety rails
Integrated bow anchor boxes with flush lids
Windlass anchoring system with 4 windlass heads
Galley & Interior
Custom granite countertops (galley & baths)
Full-size stainless steel range & oven
Microwave & dishwasher
66" stainless refrigerator/freezer (galley)
Commercial-grade ice maker
Trash compactor
Washer/Dryer combo
Fully stocked galley (small appliances, cookware & kitchen equipment)
Custom designed interior with complete furnishings
Full carpeting throughout salon, bedrooms, decks & stairs
Custom ceramic tile in dining, hall & baths
Custom blinds & Low-E tinted windows
(2) Leather sectional sofas with matching ottoman
Mechanical & Power
Engines: Twin Diesel Yanmar 260 HP with Bravo II Drives
Generators: Twin Diesel Northern Lights 25KW
Fuel Capacity:
1,000 gallons diesel (main tanks)
500-gallon gasoline toy tank with electric pump
Electrical System:
12V house system
8,000-watt inverter with digital display control panel
24-battery bank
Safety & Systems
Running & drive lights
Spotlight
Life jackets & full safety equipment
Anchors, lines, docking & mooring equipment
Below-deck storage
Why Omega
Omega represents one of the most spacious and well-equipped 87' Adonia reverse floor plans on Lake Powell. With 30-person sleeping capacity, 1,500 gallons of combined fuel storage, dual 25KW generators, and an unmatched upper-deck entertainment layout, Share 3 offers a prime early-July ownership opportunity at one of the lake's most desirable marinas.
This is luxury, scale, and performance without full-time ownership responsibility.
The Company offers the details of this vessel in good faith but cannot guarantee or warrant the accuracy of this information nor warrant the condition of the vessel. A buyer should instruct his agents, or his surveyors, to investigate such details as the buyer desires validated. This vessel is offered subject to prior sale, price change, or withdrawal without notice.
Price History
| Date | Event | Price |
|---|---|---|
| 3/25/26 | Price decreased | $249,000(-7.8%) |
| 3/5/26 | Initial price | $270,000 |
Finance your dream boat!
Finance your dream boat!
Be the first to know when similar boats hit the market
Get notified when new boats become available
Meet the Broker

Address
Boat Location
Contact Antelope Point Brokerage about 2022 Adonia Omega Trip #3 (June 29 - July 05)
P O Box 880, Page, AZ, 86040
Contact Antelope Point Brokerage
P O Box 880, Page, AZ, 86040






